Quer estar a par das novidades imobiliárias em Braga?

Subscreva a nossa newsletter e receba primeiro no seu email os mais recentes imóveis à venda!

Ao subscrever a newsletter está a concordar com a nossa Política de Privacidade.
Apartamento T2 NOVO na Qta. da Naia, Ferreiros - Braga!
  • Apartamento T2 para Venda em Ferreiros e Gondizalves, Braga, Braga - Fachada (Imagem 1)
  • Apartamento T2 para Venda em Ferreiros e Gondizalves, Braga, Braga - Fachada (Imagem 2)
  • Apartamento T2 para Venda em Ferreiros e Gondizalves, Braga, Braga - Fachada (Imagem 3)
  • Apartamento T2 para Venda em Ferreiros e Gondizalves, Braga, Braga - Fachada (Imagem 1)
    Realidade virtual
  • Apartamento T2 para Venda em Ferreiros e Gondizalves, Braga, Braga
    Vídeo
Todas as fotografias

Apartamento T2 NOVO na Qta. da Naia, Ferreiros - Braga!

Certificado energético
  • 1 Quarto
  • 1 Suite
  • 3 Assoalhadas
  • 2 WC's
  • 1 Lugar (garagem fechada)

Reservado

ID ZMPT571010

Ferreiros e Gondizalves   Braga   Braga

Apartamento T2 Para Venda

  • CONDIÇÃO: Em construção
  • ANO DE CONSTRUÇÃO: 2027
  • ÁREA ÚTIL: 94m2
  • ÁREA BRUTA: 119m2
Elevador
Acesso apropriado a pessoas com mobilidade reduzida
1 Varanda
1 Sala
1 Cozinha
Orientação solar: Este, Oeste
Boa exposição solar
Cozinha equipada
Cozinha mobilada
Distância à cidade
Privacidade
Vista cidade
Ar condicionado
Gás canalizado
Estores elétricos
Vídeo-porteiro
Churrasqueira / Barbecue
Hall de entrada
Roupeiro
Vidros duplos
Apartamento T2 NOVO c/119 m² na Qta. da Naia, Ferreiros - Braga!

Este apartamento T2, em fase de construção, localiza-se na Quinta da Naia, Ferreiros. Nas imediações podemos encontrar...
Ver mais

Localização:

Rua Padre Francisco Marques
Ferreiros e Gondizalves

 

Código-postal:

4700-120

Ver mapa
Entrar em contacto

Rua do Complexo Desportivo, 36
4715-027 Braga

(Junto à rotunda do BragaParque)

AMI 17432

Quer estar a par das novidades imobiliárias em Braga?

Subscreva a nossa newsletter e receba primeiro no seu email os mais recentes imóveis à venda!

Ao subscrever a newsletter está a concordar com a nossa Política de Privacidade.
REDES SOCIAIS:

* Chamada para rede móvel nacional.

Ligar
Apartamento T2 para Venda em Ferreiros e Gondizalves, Braga, Braga - Fachada (Imagem 1)
Apartamento T2 para Venda em Ferreiros e Gondizalves, Braga, Braga - Fachada (Imagem 2)
Apartamento T2 para Venda em Ferreiros e Gondizalves, Braga, Braga - Fachada (Imagem 3)
Apartamento T2 para Venda em Ferreiros e Gondizalves, Braga, Braga - Fachada (Imagem 4)
Apartamento T2 para Venda em Ferreiros e Gondizalves, Braga, Braga - Sala (Imagem 1)
Apartamento T2 para Venda em Ferreiros e Gondizalves, Braga, Braga - Sala (Imagem 2)
Apartamento T2 para Venda em Ferreiros e Gondizalves, Braga, Braga - Sala (Imagem 3)
Apartamento T2 para Venda em Ferreiros e Gondizalves, Braga, Braga - Sala (Imagem 4)
Apartamento T2 para Venda em Ferreiros e Gondizalves, Braga, Braga - Quarto (Imagem 1)
Apartamento T2 para Venda em Ferreiros e Gondizalves, Braga, Braga - Quarto (Imagem 2)
Apartamento T2 para Venda em Ferreiros e Gondizalves, Braga, Braga - Quarto (Imagem 3)
Apartamento T2 para Venda em Ferreiros e Gondizalves, Braga, Braga - Quarto (Imagem 4)
Apartamento T2 para Venda em Ferreiros e Gondizalves, Braga, Braga - Quarto (Imagem 5)
Apartamento T2 para Venda em Ferreiros e Gondizalves, Braga, Braga - Quarto (Imagem 6)
Apartamento T2 para Venda em Ferreiros e Gondizalves, Braga, Braga - Quarto (Imagem 7)
Apartamento T2 para Venda em Ferreiros e Gondizalves, Braga, Braga - Fachada (Imagem 5)
Apartamento T2 para Venda em Ferreiros e Gondizalves, Braga, Braga - Fachada (Imagem 6)
Apartamento T2 para Venda em Ferreiros e Gondizalves, Braga, Braga - Fachada (Imagem 7)
Apartamento T2 para Venda em Ferreiros e Gondizalves, Braga, Braga - Fachada (Imagem 8)
Apartamento T2 para Venda em Ferreiros e Gondizalves, Braga, Braga - Fachada (Imagem 9)
Apartamento T2 para Venda em Ferreiros e Gondizalves, Braga, Braga - Fachada (Imagem 10)
Apartamento T2 para Venda em Ferreiros e Gondizalves, Braga, Braga - Fachada (Imagem 11)
Apartamento T2 para Venda em Ferreiros e Gondizalves, Braga, Braga - Fachada (Imagem 12)
Apartamento T2 para Venda em Ferreiros e Gondizalves, Braga, Braga - Fachada (Imagem 13)
Apartamento T2 para Venda em Ferreiros e Gondizalves, Braga, Braga - Fachada (Imagem 14)
Apartamento T2 para Venda em Ferreiros e Gondizalves, Braga, Braga - Fachada (Imagem 15)
Apartamento T2 para Venda em Ferreiros e Gondizalves, Braga, Braga - Área envolvente (Imagem 1)
Apartamento T2 para Venda em Ferreiros e Gondizalves, Braga, Braga - Fachada (Imagem 16)
Apartamento T2 para Venda em Ferreiros e Gondizalves, Braga, Braga - Fachada (Imagem 17)
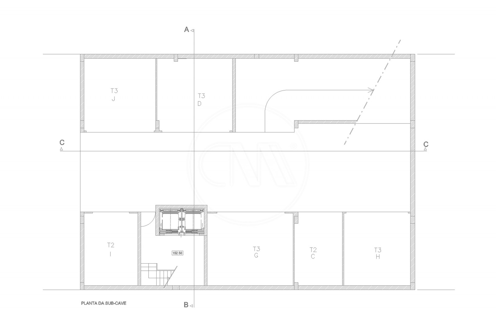
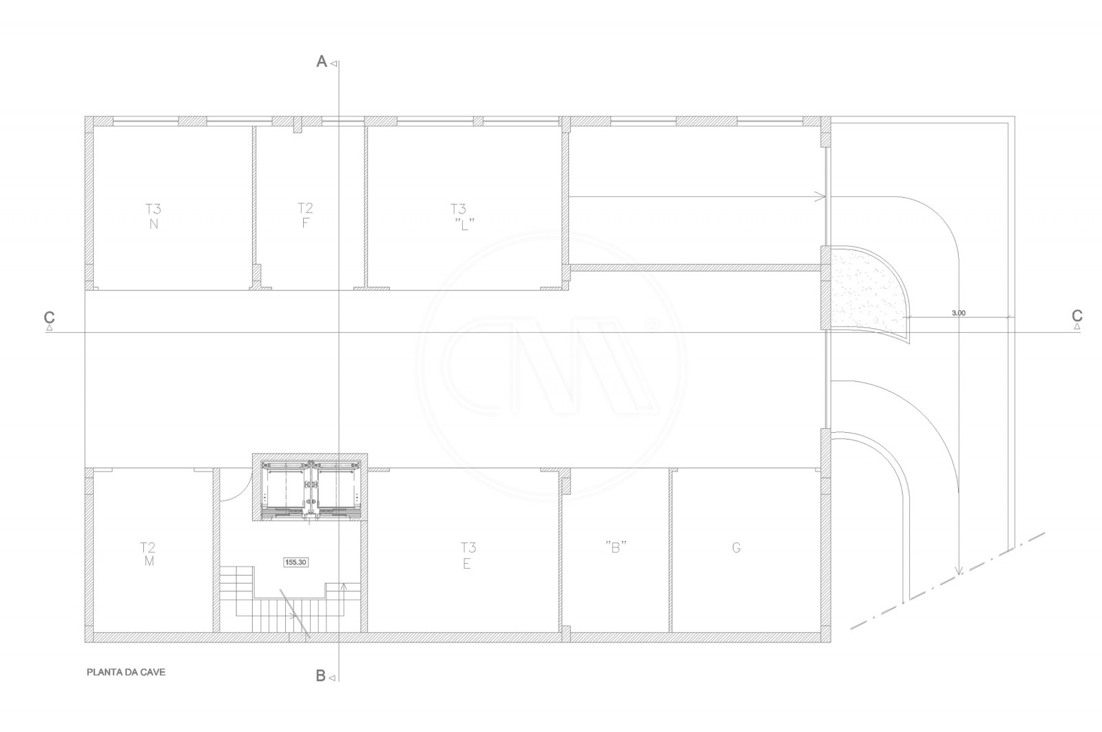
Apartamento T2 para Venda em Ferreiros e Gondizalves, Braga, Braga - Planta (Imagem 1)
Apartamento T2 para Venda em Ferreiros e Gondizalves, Braga, Braga - Planta (Imagem 2)
Apartamento T2 para Venda em Ferreiros e Gondizalves, Braga, Braga - Planta (Imagem 3)
Apartamento T2 para Venda em Ferreiros e Gondizalves, Braga, Braga - Planta (Imagem 4)
Apartamento T2 para Venda em Ferreiros e Gondizalves, Braga, Braga - Planta (Imagem 5)
Apartamento T2 para Venda em Ferreiros e Gondizalves, Braga, Braga - Planta (Imagem 6)
Apartamento T2 para Venda em Ferreiros e Gondizalves, Braga, Braga - Planta (Imagem 7)
Apartamento T2 para Venda em Ferreiros e Gondizalves, Braga, Braga - Planta (Imagem 8)
Apartamento T2 para Venda em Ferreiros e Gondizalves, Braga, Braga - Planta (Imagem 9)

Está com dificuldades? Nós ajudamos!